استعرض محافظ كربلاء المقدسة المهندس نصيف جاسم الخطابي، اليوم الاثنين ، تقنية تحسين عملية جمع النفايات من خلال استخدام التكنلوجيا الحديثة مع شركة متخصصة بتحسين الكفاءة والنظافة في المدن والمناطق الحضرية.
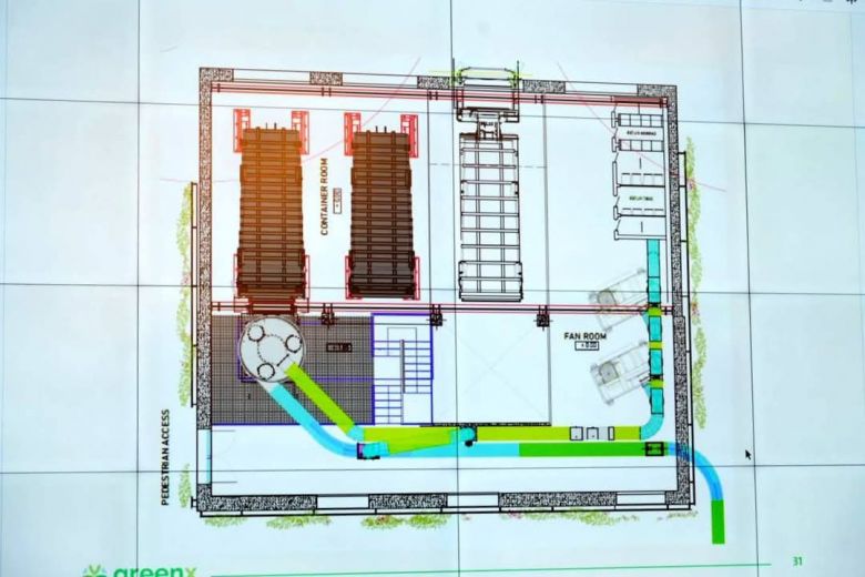
وقال محافظ كربلاء في تصريح لموقع كربلاء الاخباري، ان "تم التباحث مع شركة متخصصة في جمع النفايات بتقنية الهواء المضغوط المتطورة وتحسين الكفاءة والنظافة في المدن والمناطق الحضرية و بحضور مدراء الدوائر ذات العلاقة".
واوضح، ان "هذا المشروع يعد الأول من نوعه على مستوى العراق والمنطقة وليس مجرد حل لمشكلة النفايات بل هو قفزة نوعية نحو مدينة عصرية مستدامة تجمع بين عبق التاريخ وأصالة التراث وبين أحدث ما توصلت إليه التكنولوجيا في خدمة البيئة والإنسان".
واضاف محافظ كربلاء، ان "المشروع يمثل جزءاً من رؤية استراتيجية شاملة لتطوير كربلاء المقدسة وتحويلها إلى مدينة نموذجية تليق بمكانتها الدينية وتوفر لزوارها وسكانها أفضل مستويات النظافة والخدمات، مشيرا الى، "وضع دراسة متكاملة لتطبيق المشروع في مركز المدينة والمناطق المحيطة بها مما يؤكد على الجدية والتخطيط الدقيق لهذا المشروع الطموح وتعزيز مكانة كربلاء كوجهة سياحية دينية رائدة ونموذج يحتذى به في المحافظات الاخرى".
موقع كربلاء الاخباري
تحرير/ فاطمة صالح







